The Value of Detailing in Landscape Implementation

CEO & Garden Designer
Ruth Marshall

The transition from early concept drawings to a finished landscape is where experience truly counts. The preliminary visuals are the spark; they capture imagination and excitement, but that is only the beginning. The real craft lies in the detailing: the careful decisions, specifications and coordination that bring that vision to life on the ground.
Step 1: From Vision to Costing


To get the design drawings broadly stabilised, you will have probably been through 2-3 rounds of designs looking at visuals, models and mood-boards, as well as an initial concept plan. At this stage, you are likely to be thinking about how much all of this will cost, and will want to see budget costs to allow you to decide if this is the way you want to move forward.
To price a design meaningfully, even at budget stage, most of the construction must be defined: materials, suppliers, build-ups and likely methods of installation.
At this stage, we consider:
- Materials: all hard and soft materials, with quantities and specifications
- Groundworks: clearance, levels, soil preparation
- Drainage: allowances for both hard and soft landscaping
- Enabling works: excavation, tree works and site preparation
- Construction methods: typical details for build-ups and junction details for hardscaping
- Bought-in items: furniture, kitchens, metalwork, planters, water features, gates
- Bespoke elements: pricing for custom-built features
- Planting: itemised costs for trees, hedging and decorative planting
- Specialist works: irrigation, lighting, AV, automation, play and security
Getting this level of detail right early on allows for informed decision-making early.
Step 2: Budgeting and Value Engineering

With these details in place, we prepare budget costings and review them collaboratively. The huge value of this compared to a tender is that it’s an open “roll up the sleeves and see where we want to get to” meeting led by the design team, not a negotiation with a potential contractor. You can relax, ask the questions you want to and get to the best possible answer.
We look at:
- Line-by-line costs for each element
- Provisional sums with realistic ranges
- Options for value engineering, where savings can be made without loss of quality
- The impact of design changes to meet a target budget
Drawings are then updated, decisions confirmed, and the design signed off ready for tender.
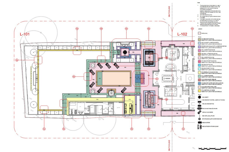
Step 3: Final Detailing
For smaller or more straightforward projects, this may be enough. But if you have exacting standards, or for anything complex or with multiple contractors, detailed design is essential. It ensures clarity, coordination and quality.

That means:
- Construction and fabrication details for walls, steps, edges and junctions
- Technical specifications for soils, turf and build-ups
- Technical detailing for balustrades, piers, gates and railings
- Confirmed supplier quotes for lighting, irrigation and other systems
- Finalised planting plans, lists and specimen selections
- Set-out, levels and drainage drawings
Skipping this stage often leads to misunderstanding on site and can lead to costly rework later.
Step 4: Tender and Oversight
A clear set of details and specifications ensures tenders are comparable, avoiding the problem of wildly different prices for different scopes.

Once on site, the drawings are only as good as their interpretation. CGLA’s designers stay closely involved throughout construction, checking every element from paving alignment to tree placement. We coordinate with architects, main contractors and specialists, attend site meetings and resolve queries as they arise, because it is here that the details make the difference.
Step 5: Completion and Beyond
When construction finishes, we oversee snagging and handover, and can provide ongoing maintenance and quarterly review visits to ensure the landscape establishes well. Planting in particular benefits from continuity. Our designers manage sourcing, installation and aftercare to ensure the design intention carries through from paper to soil.

On larger projects, “as-built” drawings may be required to capture any changes during the build. We can provide these as part of a full handover pack where needed.
A beautiful concept is only half the story. The real magic lies in the detailing.
CGLA are an award winning team of Garden Designers, Landscape Architects, Landscapers and Garden Maintenance Operatives working in Buckinghamshire, London and the South East, as well as on prestigious design projects across the UK and abroad. We are currently working in Oman, Jersey and France, and welcome enquires for design, landscaping or garden maintenance. Contact us here